狭小調剤薬局
間口が狭い空間でも薬局を作ることができます。
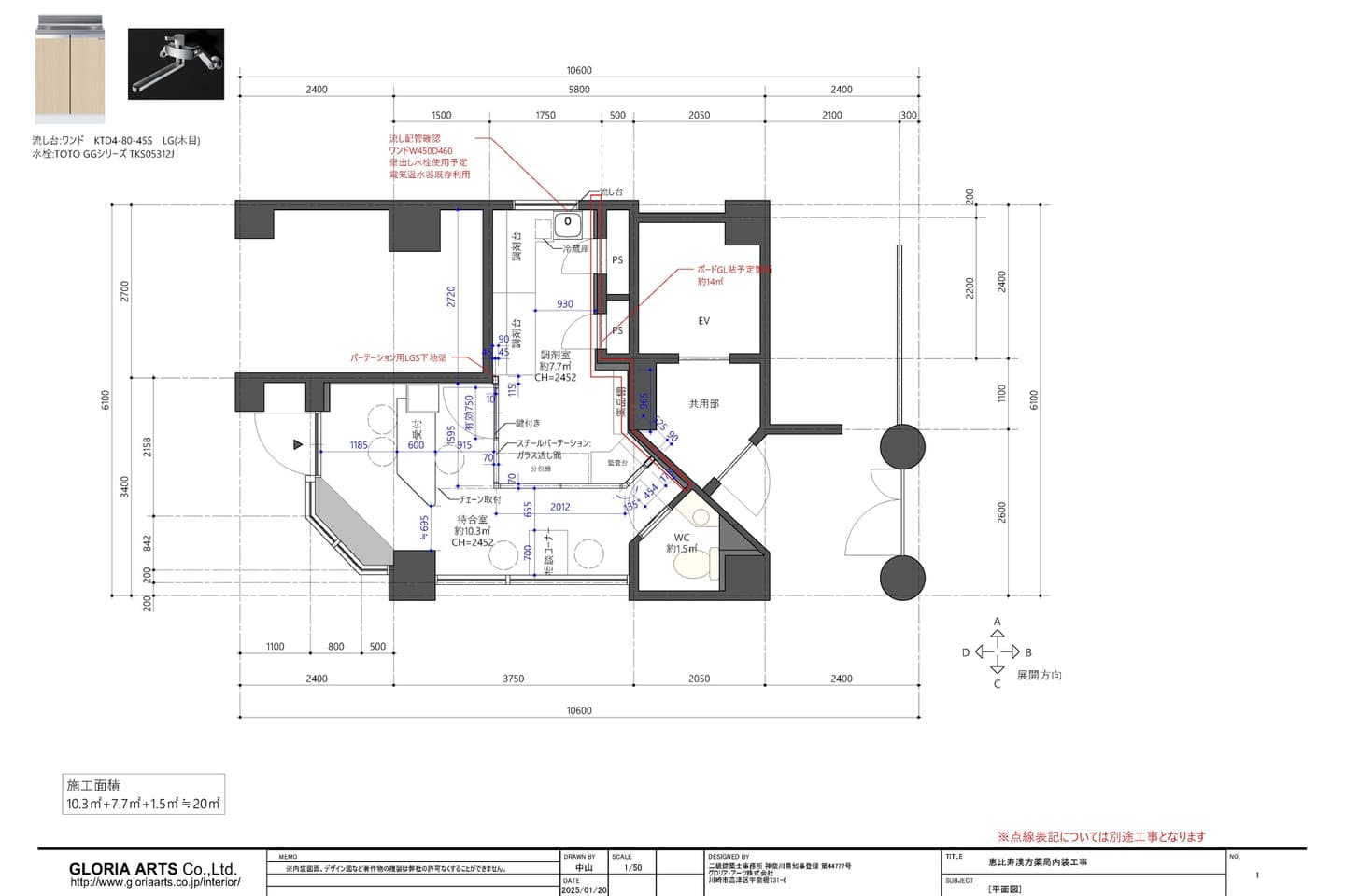
恵比寿漢方薬局様(東京都渋谷区) Details
設計施工(内装・カウンター・サイン)
2025年2月に竣工。シックな現代の雰囲気と漢方の歴史を織り交ぜた、落ち着きのある内装に仕上げました。調剤風景もみることができ、安心感のある薬局となりました。
恵比寿漢方薬局様 平面図 約20㎡
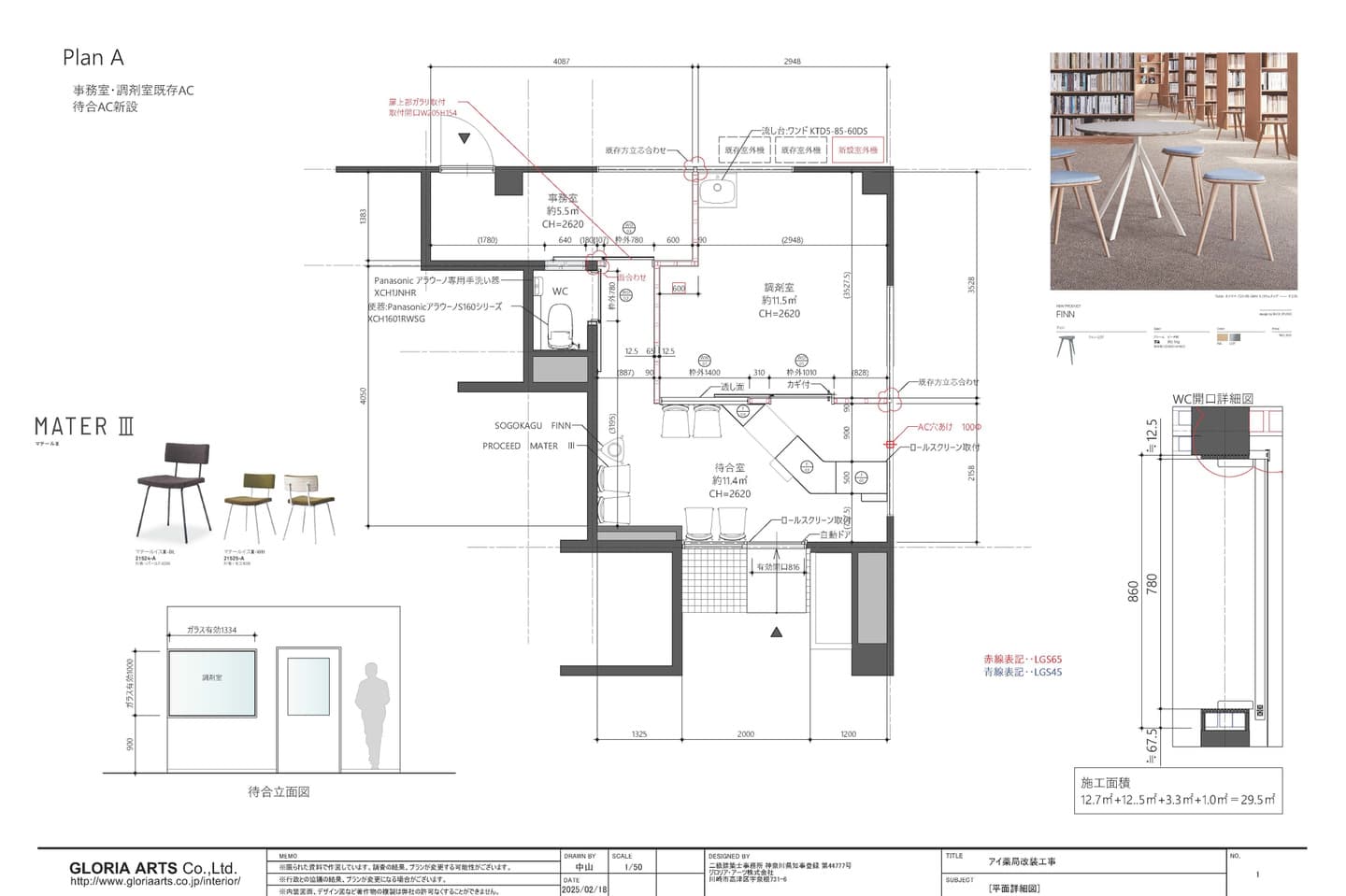
たから薬局様(東京都練馬区) Details
設計施工(内装・カウンター・サイン)
2025年5月に竣工。木を多用したナチュラルモダンをコンセプトに、温かみのある空間に仕上げました。カウンター側面には斜めの木目を使用し、受付が空間のアクセントになるようなデザインを取り入れました。
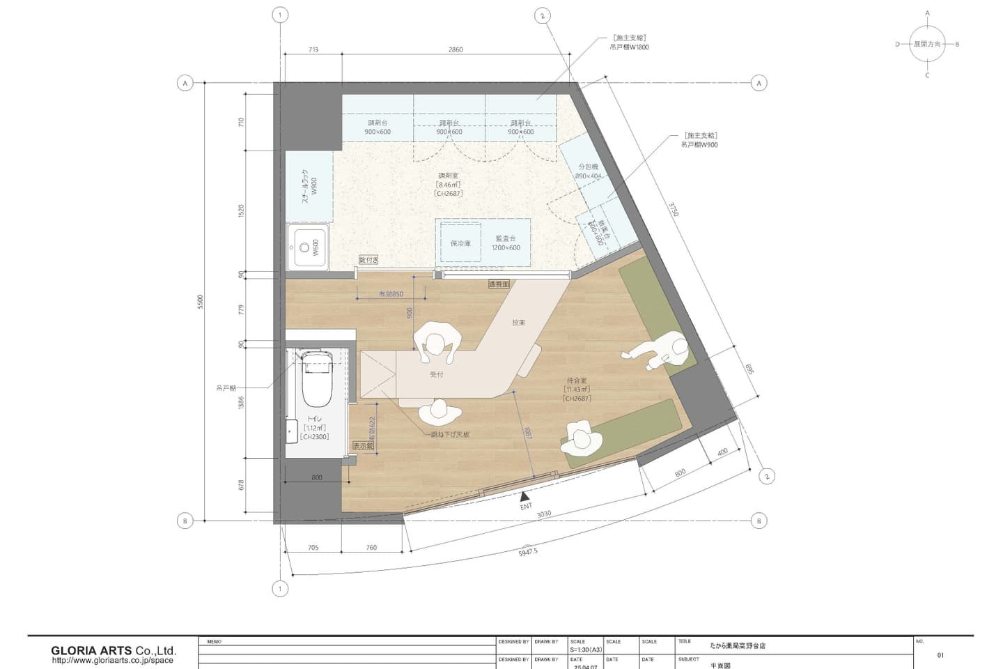
アイ調剤薬局様 平面図 約30㎡
アイ調剤薬局様(東京都新宿区) Details
設計施工(内装・カウンター・サイン)
2025年2月に竣工。モダンカフェスタイルをコンセプトに、落ち着きのあるスタイリッシュな内装に仕上げました。天井には木目クロスを使用し、温かみと奥行を感じられる空間になりました。
アイ調剤薬局様 平面図 約30㎡
やどりぎ薬局様(東京都品川区) Details
設計施工(内装・サイン)
2024年8月に竣工。和モダンをコンセプトに、天井高を活かした、親しみやすい内装に仕上げました。化粧柱・付鴨居がとても良いアクセントになっています。
やどりぎ薬局様 平面図 約32㎡
ハピネス薬局様(港区麻布十番) Details
設計施工(内装・カウンター・サイン)
2024年1月に竣工。全体で約9坪と限られた広さの中で、天井を高くし、鏡などのアイテムを使うことで、開放的な高級感のある空間になりました。
ハピネス薬局様 平面図 約26㎡
アポロ薬局様(中央区月島) Details
設計施工(内装・カウンター・サイン)
2023年11月に竣工。白を基調とし、木や石の素材をアクセントとすることで、清潔感とぬくもりを感じられる空間にしました。
アポロ薬局様 平面図 約27㎡
クローバー薬局様(江東区清澄白河) Details
クローバー薬局様 平面図 約20㎡
薬局うさぎや様(杉並区高円寺) Details
2022年9月に竣工。施主様のご要望だったカフェ風の内装に仕上げ、温かく落ち着いた雰囲気の薬局に。
薬局うさぎや様 平面図 約32㎡